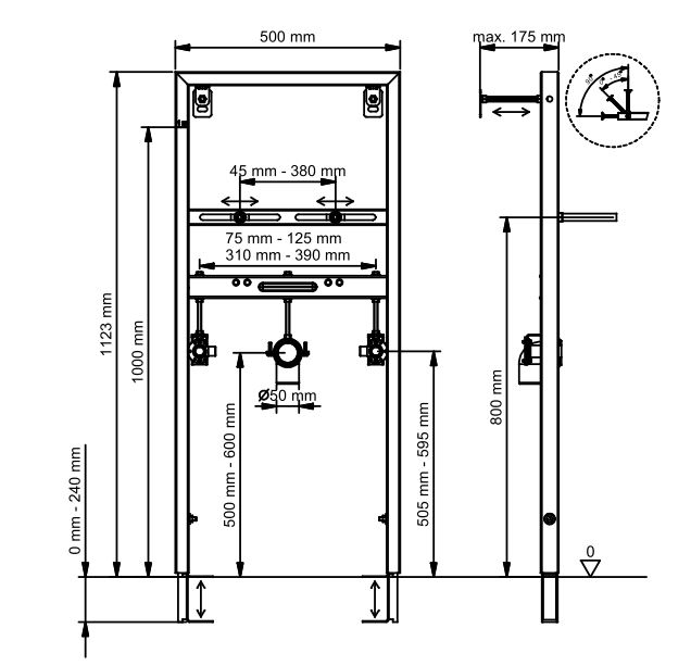
Ugradbeni element VISAM za umivaonik sa priključkom za T/H vodu
Ugradbeni element VISAM za umivaonik sa priključkom za T/H vodu
Kataloški broj: 893-005
| Šifra artikla: | 06150001 |
| Kataloški broj: | 893-005 |
| ID artikla: | 557 |
| Težina: | 0,00 kg |
| Akcija: | - |
| Rabat: | 0% |
| Atribut 1: | Visam |